The story so far
Work
Contact
The story so far
Work
Contact
Kaïs

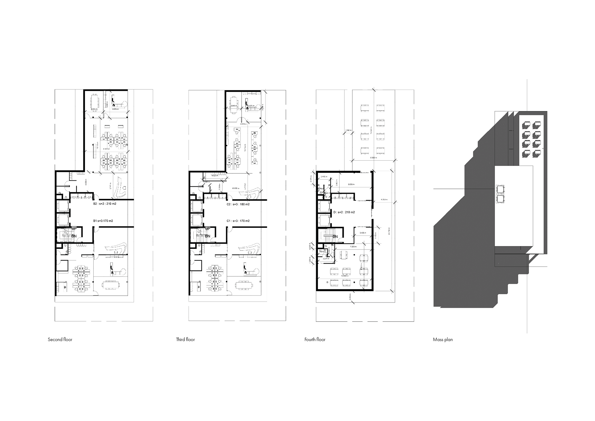
A Modern Renaissance of the Moucharabieh

You may also like

Telling a story through digital renderings
2018
Limited edition tote bags and art prints
2024
Function Shapes Form, Form Transforms Function
2014
A waste processing amusement park In North Africa
2016
Studying site plan scenarios
2017
Designing a B*-BOAT BIM*
2019
Art creation and dealing start-up
2024
The state of my future projects
2024
FAB* marketing with Mastercard
2024
Solving a “criminal” case
2020
↑Back to Top
//-//