The story so far
Work
Contact
The story so far
Work
Contact
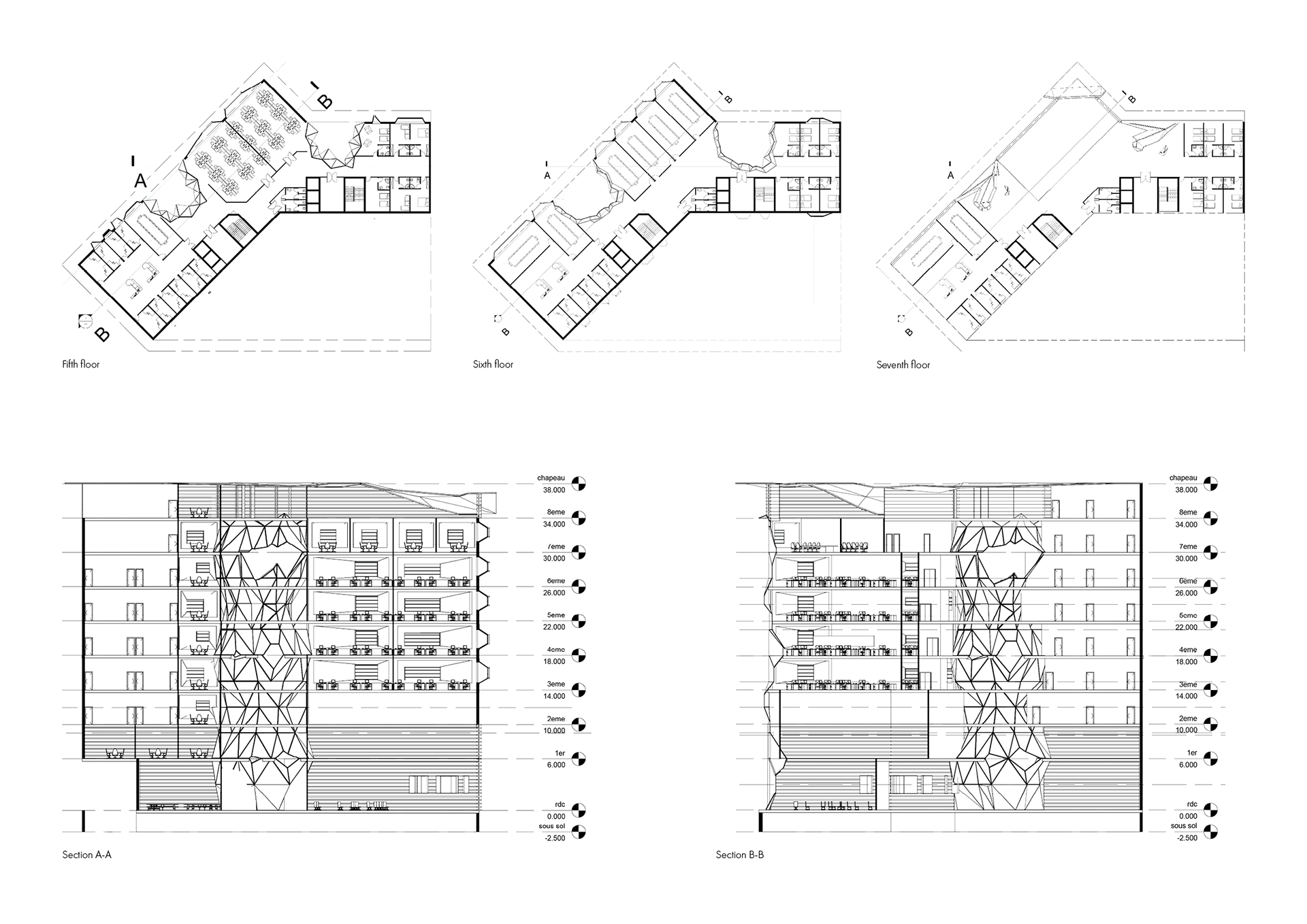
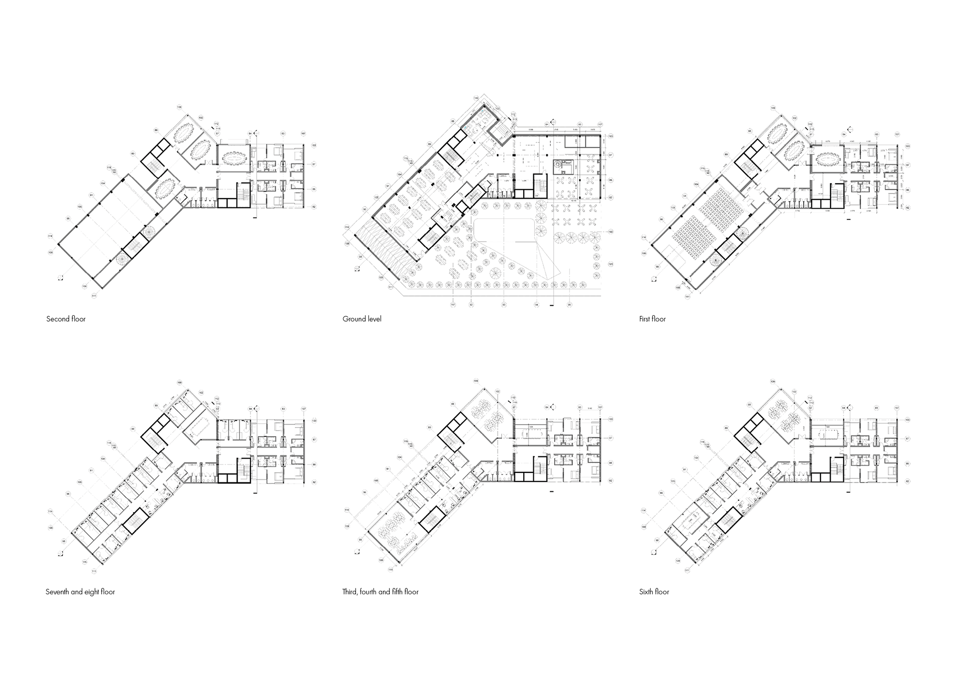
Kaïs

FULL BIM; 3 design phases

You may also like

Redefining a river’s urban life
2017
Updated model//Hybrid model//Exhibition model
2017
Living between lines
2013
Telling a story through digital renderings
2018
A waste processing amusement park In North Africa
2016
Graphics on supply with SupplyOn
2025
The state of my future projects
2024
My graphic works with Stoff Magasin
2023
Designing adaptable cabins
2017
A Modern Renaissance of the Moucharabieh
2014
↑Back to Top
//-//